Prix
205 000€
Type
Appt. au 2ème
Pièces
T2
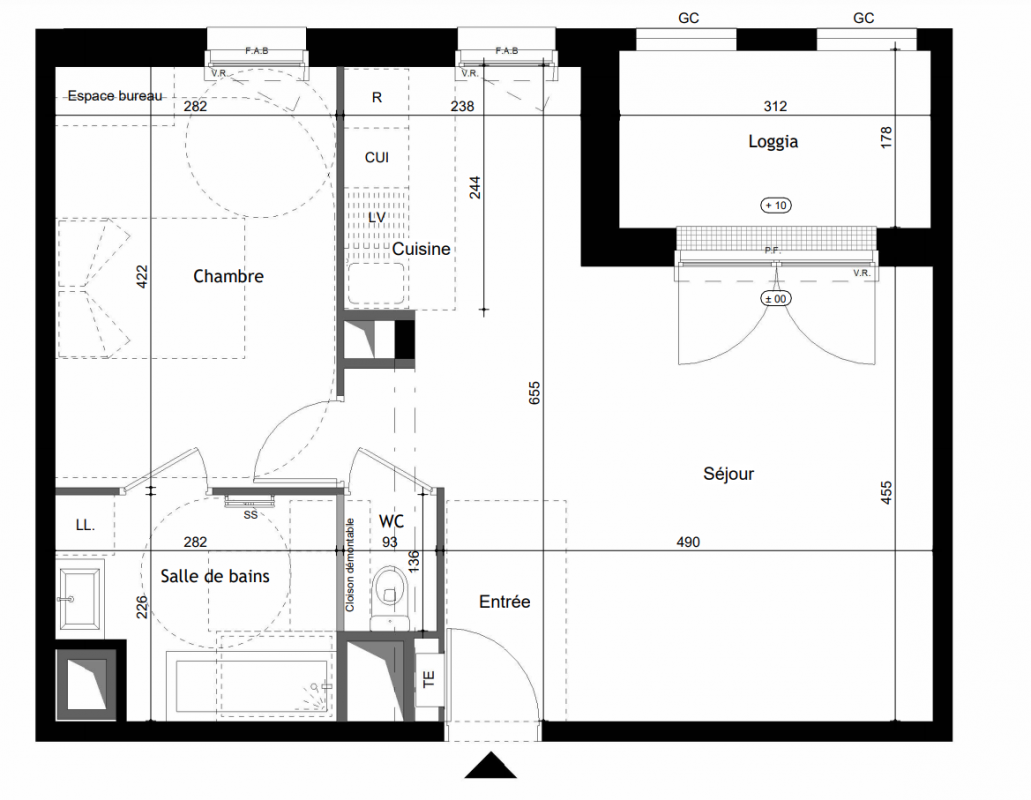
Surface
47.8 m²
Exposition
Nord
Ville
Avrillé (49240)
Livraison
2ème trimestre 2027
Informations
01 81 80 39 10

Présentation du programme "Le Floréa"

Une adresse connectée aux portes d’Angers
Limitrophe d’Angers, Avrillé se trouve au cœur d’une agglomération de près de 250 000 habitants et participe activement à son développement. Desservie par l’A11 et le contournement Nord d’Angers, la ville accueille plusieurs zones d’activités et bénéficie d’une excellente notoriété en tant que ville-parc tournée vers l’avenir. C’est donc tout naturellement que son nouveau quartier emblématique, le Plateau de la Mayenne, mêle commerces, équipements scolaires, infrastructures sportives et voies douces dans un espace majoritairement verdoyant. À 3 min* à pied du tramway A reliant le CHU, l’Université, le centre-ville d’Angers et les gares, cette résidence saura convaincre tous les profils. Son cadre boisé, sa qualité de conception et le confort du neuf vous assurent une forte demande locative et de belles perspectives de valorisation patrimoniale.

Autres logements T2 du programme "Le Floréa"

Pas de logements disponibles
DO NOT CLICK