Prix
532 100€
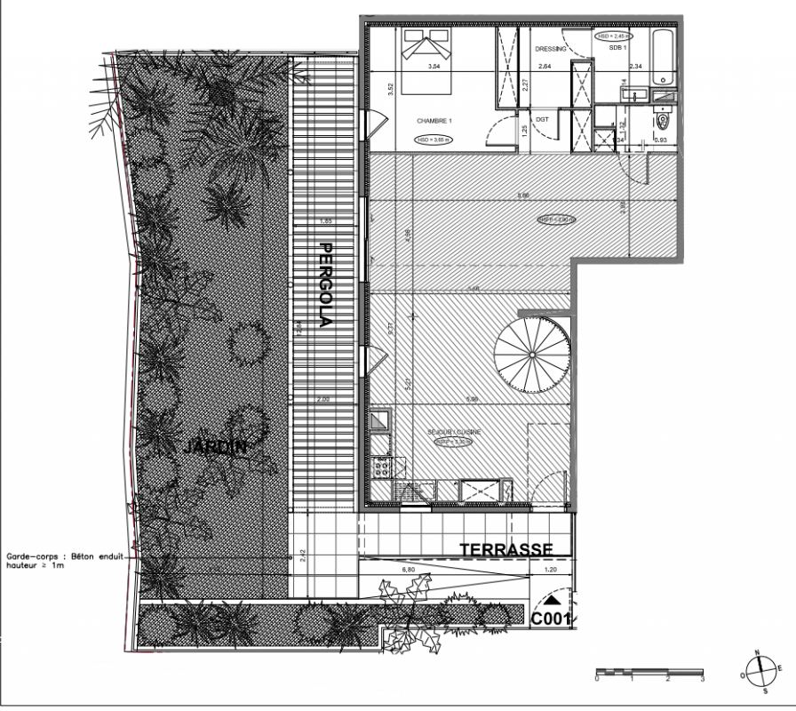
Type
Appt. au 0-RDC
Pièces
T4
Surface
126.03 m²
Exposition
-
Ville
Menton (06500)
Livraison
3ème trimestre 2022
Informations
01 81 80 39 10

Présentation du programme "Cap Riviera Uli"

Implantée à proximité des plages, du Casino et à deux pas du "Winter Palace" (monument historique), la résidence s¿édifie au coeur de Menton, dans le prolongement des Jardins Biovès La vieille ville et son marché couvert sont situés à 15 minutes à pied de la résidence. Une architecture contemporaine signée Jean Michel Wilmotte , mêlant larges balcons, terrasses et bow-windows.

Autres logements T4 du programme "Cap Riviera Uli"

Pas de logements disponibles
DO NOT CLICK