1 240 000€
Maison au 0-RDC
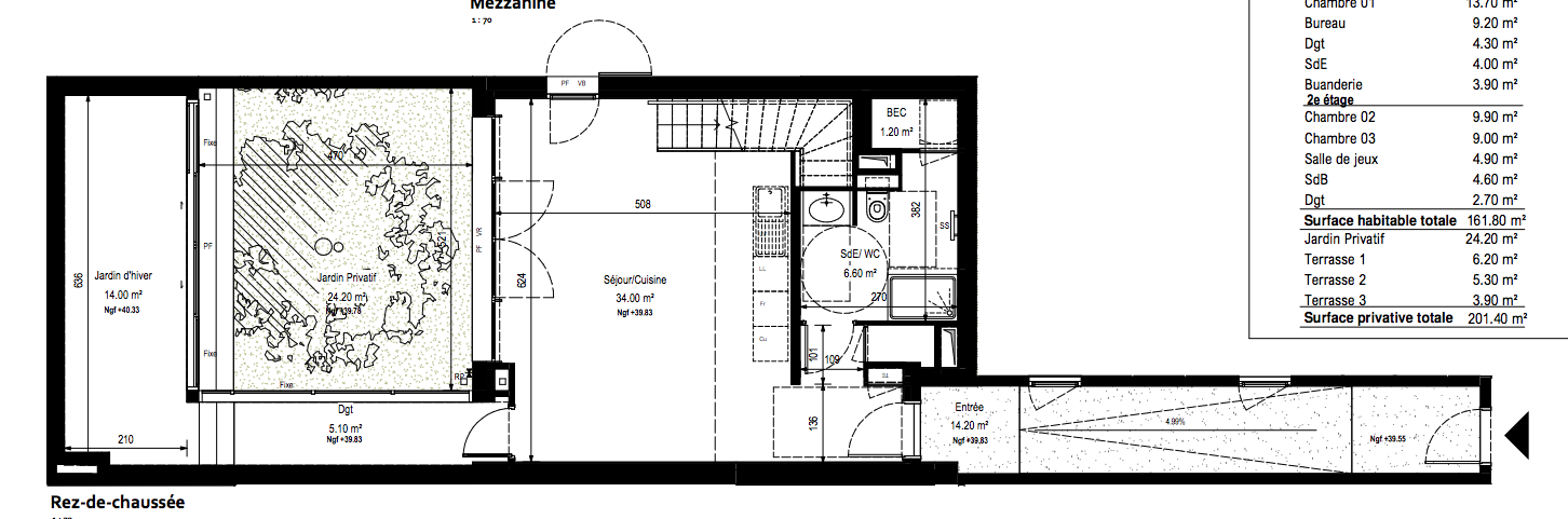
T4
161.8 m²
Ouest
Marseille 6ème (13006)
4ème trimestre 2025
01 81 80 39 10
Présentation du programme "Programme neuf Marseille 6ème (13006)"
Dernières opportunités cœur du 6e arrondissement de MARSEILLE ! Venez visiter notre appartement décoré.Emplacement exceptionnel à 12 min du métro 2 "Castellane" et du tram 3 "Rome Dragon". Ouverte sur le calme d'un jardin d'agrément, notre résidence comprend des appartements, du studio au 5 pièces. Confortables, ils répondent aux dernières exigences en matière de bien-être contemporain.Votre voiture trouvera sa place dans les parkings en sous-sol et des locaux à vélos sont également prévus. Quant à la vie quotidienne, tout est à proximité, commerces, établissements scolaires et transports. Contactez vite un de nos conseillers pour concrétiser votre projet immobilier neuf au sein d'un emplacement rare, au coeur du 6ème arrondissement !
Autres logements T4 du programme "Programme neuf Marseille 6ème (13006)"
| Disponibilité | Prix | No | Genre | Pièces | Surface | Étage | Disponibilité | Prix | ||
|---|---|---|---|---|---|---|---|---|---|---|
| Voir | Optionné | 499 000€ | B103 | Appt. | T4 | 78.6m2 | 1er | Optionné Mais pas encore vendu 😉 | 499 000€ | Voir |
| Voir | Disponible | 1 100 000€ | M2 | Maison | T4 | 144.1m2 | 0-RDC | Disponible | 1 100 000€ | Voir |
| Voir | Disponible | 995 000€ | M1 | Maison | T4 | 134.2m2 | 0-RDC | Disponible | 995 000€ | Voir |


