Ce lot n’est plus disponible chez VIANOVA ou est vendu.

Vous pouvez revenir dans 24h pour vérifier le stock à jour ou contacter un conseiller Vianova pour vérifier le stock en direct.
Vous pouvez également continuer votre recherche sur notre site « ici ».

Prix
251 000€
Type
Appt. au 2ème
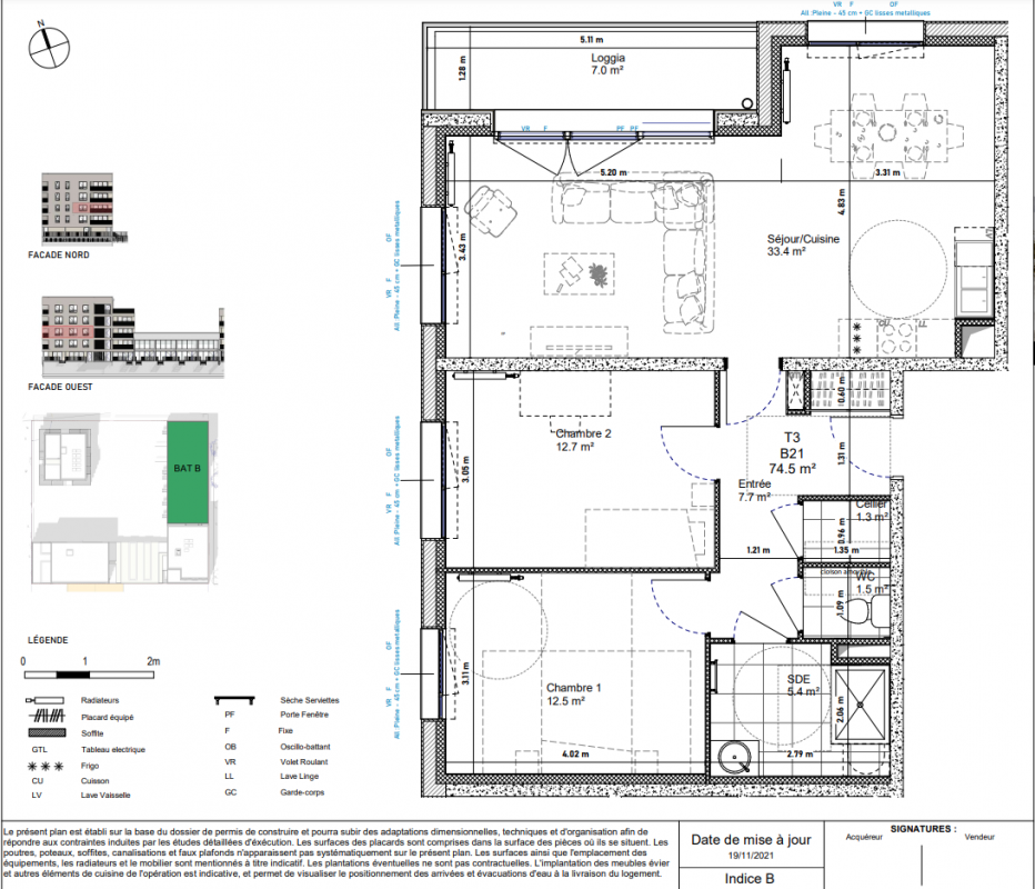
Pièces
T3
Surface
74.7 m²
Exposition
Nord-Ouest
Ville
Amiens (80000)
Livraison
4ème trimestre 2025
Informations
01 81 80 39 10

Présentation du programme "L'ARCHIPEL"

Nichée dans un cadre de vie où paysages naturels et ville réinventée se mêlent, à moins d’un quart d’heure à pied de la cathédrale et de la gare, la nouvelle résidence l’ARCHIPEL se compose de 4 petits immeubles à taille humaine abritant des appartements du studio au 5 pièces aux vues imprenables.
Il vous suffit d’ailleurs de traverser la rue de Verdun et d’emprunter la nouvelle passerelle pour arriver aux portes du plus merveilleux des jardins amiénois : les Hortillonnages.
Entièrement intégrés à la nature, les logements seront ouverts sur un jardin paysager et profiteront d’un potager partagé, chacun disposant entre autres d’un extérieur (jardin, balcon, loggia, ou terrasse) et d’un stationnement.
De la sérénité pour tous et un emplacement étoilé où concrétiser votre projet immobilier : n’attendez plus et contactez nos conseillers pour une visite de notre logement témoin décoré au : 01 81 80 39 10 (appel gratuit).

Autres logements T3 du programme "L'ARCHIPEL"

Disponibilité Prix Genre Pièces Surface Étage
Voir
Optionné
268 000€ Appt. T3 72.8m2 2ème
DO NOT CLICK